Mieszkanie Poznań Rataje 47,2m2 3 pokoje Osiedle Bohaterów
Poznań / Nowe Miasto Pokaż na mapie ›
Odświeżone: Wtorek, 04 Listopad, 2025 11:41
475 000 zł
10064 zł/m2
Szczegóły ogłoszenia
- Kategoria: Mieszkania / Sprzedaż
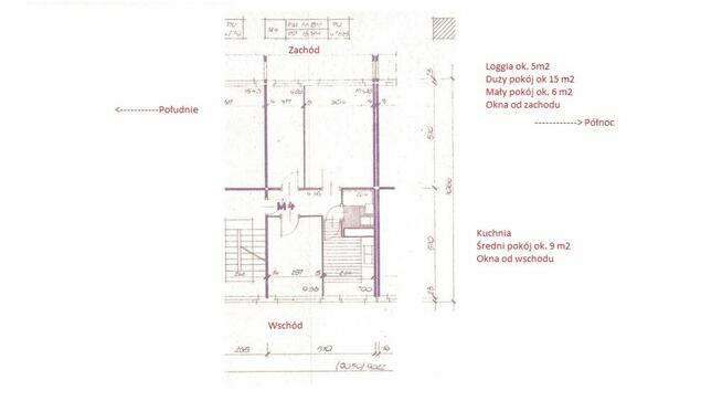
- Powierzchnia:47,20 m2
- Liczba pokoi:3 pokoje
- Zabudowa:Blok
- Tech. budowy:Wielka Płyta
- Piętro :4 piętro
- Liczba pięter:4 piętra
- Rynek:Wtórny
- Rok budowy:1973
- Stan:Do gruntownego remontu
- Forma kuchni:Oddzielna
- Sprzedaż:Bez pośredników
- Inf. dodatkowe:Loggia, Piwnica
- Cena: 475 000 zł / 10064 zł/m2
- Ulica: Osiedle Bohaterów II Wojny Światowej 39-45
Opis oferty
Mieszkanie Poznań Rataje Wolne od zaraz Osiedle Bohaterów II Wojny Światowej. Blok naprzeciwko deski 39-45 4 piętro z 4 Trzypokojowe. Duża loggia piwnica dużo zieleni pod oknami cisza i spokój na osiedlu jak i w klatce schodowej. Sprzedaż przez właściciela bez pośredników. Pełna własność Księga Wieczysta. Hipoteka bez obciążeń. Informacja dla obserwujących to ogłoszenia. Odpowiedź na pytanie czy cena mieszkania nie wzrosła przypadkiem w ostatnim czasie: Tak to nie pomyłka wzrosła.UWAGA!!! Jeżeli jesteś kompletnym burakiem, który ma się na mnie wydzierać w trakcie oglądania mieszkania, rzucać "mięsem" jak nie zgadzam się na Twoje bezpodstawne żądania i marudzić, że niepotrzebnie zawracałem Ci d..... (Ja zawracałem ????) to w żadnym przypadku nawet nie próbuj się ze mną kontaktować niezależnie od tego czy jesteś z Zaniemyśla czy też nie.
Sprawdź zainteresowanie tym ogłoszeniem
Wyświetlenia
Data dodania
Ostatnio widziany
Obserwujących
Wysłane zapytania
Odsłony telefonu
Powiadom o podobnych ogłoszeniach
Lokalizacja: Poznań
Kategoria: Nieruchomości » Mieszkania » Sprzedaż
Cena: od 404000 zł do 546500 zł Powierzchnia : od 40 m2 do 54 m2
Chcę otrzymywać powiadomienia o nowych ofertach
Sławomir
Konto prywatne
Na Lento.pl od 14 wrz 2025
Strona użytkownika
- Wypromuj ogłoszenie
- Zgłoś naruszenie
- Drukuj ulotkę
- Edytuj/usuń ogłoszenie
- Udostępnij ogłoszenie
- Dodaj na Facebook































