DOM Z PARKIEM W CENIE MIESZKANIA - podwyższony standard
Poznań Pokaż na mapie ›
Ogłoszenie archiwalne Wygasło: Niedziela, 03 Marzec, 2024 22:59
474 000 zł
5512 zł/m2
Szczegóły ogłoszenia
- Kategoria: Domy / Sprzedaż
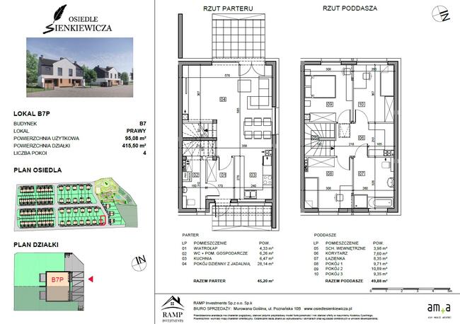
- Powierzchnia:86 m2
- Liczba pokoi:4 pokoje
- Pow. działki:195 m2
- Sprzedaż:Bez pośredników
- Inf. dodatkowe:Taras, Ogródek, Dwupoziomowe, Pom. użytkowe, Miejsce parkingowe
- Cena: 474 000 zł / 5512 zł/m2
- Ulica: Podbipiety
Opis oferty
Nowy dom w stanie deweloperskim w Murowanej Goślinie ok. 20 min. od Poznania. Do urządzenia we własnym stylu i preferencjach.Dodatkowym atutem domu będzie dodatkowy duży teren rekreacyjny, stanowiący istną oazę i miejsce zarówno na wypoczynek, jak i zabawę. To osobisty PARK za PROGIEM Waszego domu.
Prawie 7,5 tys. m2 powierzchni terenów zielonych na skraju osiedla do wyłącznej dyspozycji mieszkańców. W parku znajdą się między innymi:
– alejki pieszo–rowerowe idealne na spacery, dla rolkarzy i rowerzystów;
– plac zabaw dla dzieci;
– strefa sportu dla aktywnych, lubiących street workout i siatkówkę plażową;
– wybieg dla czworonogów;
– strefa relaksu nad stawem;
– miejsce na ognisko.
Doskonała lokalizacja nieruchomości, przestronne domy z ogródkiem, bliskość terenów zielonych i własny park to idealne miejsce do zamieszkania dla każdego.
Murowana Goślina to dynamicznie rozwijająca się miejscowość, która regularnie organizuje wydarzenia społeczne, kulturowe i sportowe, takie jak: widowisko plenerowe Orzeł i Krzyż, jarmark Św. Jakuba, liczne koncerty i maratony.
Murowana Goślina posiada bardzo dobrze rozwiniętą sieć komunikacyjną. Zaledwie 500 metrów od osiedla znajduje się dworzec PKP, z którego w 30 minut dotrzesz nowoczesnym szynobusem do centrum Poznania. Rozkład jazdy jest bogaty i zaczyna się od wczesnych godzin rannych, a kończy przed północą. W pobliżu znajdują się placówki edukacyjne, ośrodek zdrowia, urząd miasta i gminy, a także liczne punkty handlowo – usługowe np. Biedronka, Pepco czy Rossmann.
– Biedronka, PEPCO, ROSSMANN – 10 min. pieszo
– Apteka – 5 min. pieszo
– Stacja PKP i PKS – 5 min. pieszo
– Przychodnia lekarska – 5 min. pieszo
– Szkoła podstawowa – 10 min. pieszo
– Rynek w Murowanej Goślinie – 10 min. pieszo
– Przedszkole niepubliczne – 5 min. pieszo
– Przedszkole publiczne – 15 min. pieszo
– Park Krajobrazowy „Puszcza Zielonka” – 5 min. samochodem, 13 min. rowerem
– Jezioro w Kamińsku – 5 min. samochodem, 10 min. rowerem
– Jezioro w Okońcu – 10 min. samochodem, 18 min. rowerem
– Przystań kajakowa Binduga na rzece Warta w Mściszewie – 10 min. samochodem
– Arboretum Leśne w Zielonce – 10 min. samochodem
Sprawdź zainteresowanie tym ogłoszeniem
Wyświetlenia
Data dodania
Ostatnio widziany
Obserwujących
Wysłane zapytania
Odsłony telefonu
Powiadom o podobnych ogłoszeniach
Lokalizacja: Poznań
Kategoria: Nieruchomości » Domy » Sprzedaż
Cena: od 403000 zł do 545000 zł Powierzchnia : od 73 m2 do 99 m2
Chcę otrzymywać powiadomienia o nowych ofertach
Brak możliwości kontaktu przez formularz z ogłoszeniodawcą, ponieważ to ogłoszenie jest archiwalne.
Robert
Konto firmowe
Odpowiada szybko
Strona użytkownika
- Wypromuj ogłoszenie
- Zgłoś naruszenie
- Edytuj/usuń ogłoszenie
- Udostępnij ogłoszenie
- Dodaj na Facebook





























