Dokumentacja techniczna w Autocadzie (meble, wnetrza, mechan
Poznań / Grunwald Pokaż na mapie ›
Dodane: Czwartek, 05 Marzec, 2026 12:06
Szczegóły ogłoszenia
- Kategoria: Usługi / Usługi architektoniczne i geodezyjne
Opis oferty
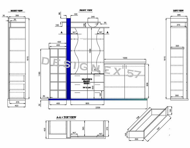
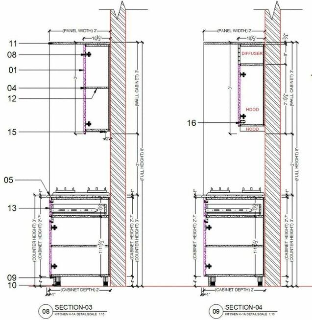
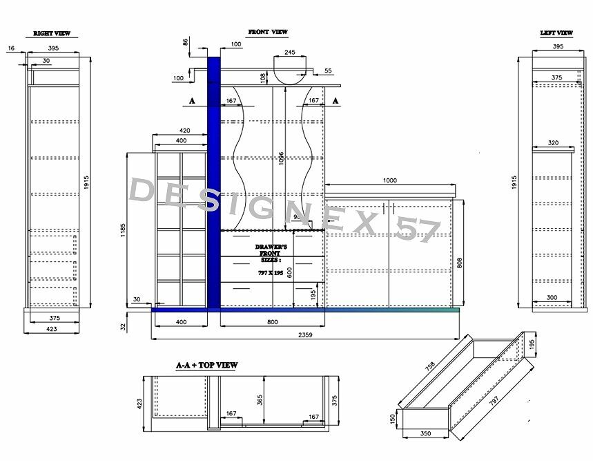
Wykonuje bardzo dokladna dokumentacje wykonawcza wyrobow meblowych, wyrobow z drewna, galanterii drzewnej, mebli dla dzieci i wszelkich innych .Zawiera ona wszystkie widoki, przekroje, szczegoly, klady i bardzo doklane wymiarowanie kazdego szczegolu. zawiera rowniez wykaz wysztkich okuc, akcesoriow, wkret itp.Kuchnie, bary, sypialnie, bibloteki, stoiska wystawienicze, bibloteki, meble dzieciece, biurka, szafy itd.to tylko niektore z zamawianych.
Pliki w jakich jest zachowana dokumentacja to dwg,dxf, dwt czy tez Pdf. Moze zawierac wszelkie dane w jezyku angielskim rowniez.
Ceny sa duzo nizsze od rynkowych .
Oferuje rowniez nauczanie obslugi AutoCada dla poczatkujacych. Dokumentacje jak i szkolenie wykonuje zdalnie bez potrzeby dojazdow, starty czasu i pieniedzy.
Zapraszam do wspolpracy rzemieslnikow, firmy i kazdego potrzebujacego dokumentacje jak i nowe wyroby nie spotykane na rynku. Na zyczenie Klienta dokumentacja moze zostac wykonana w j.angielskim.
Robert
Konto prywatne
Na Lento.pl od 25 lut 2026
Strona użytkownika
- Wypromuj ogłoszenie
- Zgłoś naruszenie
- Drukuj ulotkę
- Edytuj/usuń ogłoszenie
- Udostępnij ogłoszenie
- Dodaj na Facebook























